




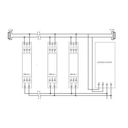
Moduł MR-AI-1 służy jako zewnętrzne urządzenie rozszerzające wejścia analogowe sterowników programowalnych PLC lub innych urządzeń, w których wymiana danych odbywa się za pomocą portu RS485 zgodnie z protokołem MODBUS RTU.
Moduł wejść analogowych z wyjściem MODBUS RTU
Działanie
Moduł posiada 4 uniwersalne wejścia analogowe. Typ wejścia zgodny ze standardem 0÷10V (napięciowe U) lub 4÷20mA (prądowe I) ustala się za pomocą wewnętrznych zworek. Moduł dokonuje ciągłego pomiaru wartości wejściowych prądu i napięcia na wszystkich wejściach bez względu na konfigurację sprzętową typów wejść (położenie zwór). Jednakże poprawnie mierzone będą te wartości wejściowe dla jakich te wejścia skonfigurowano. Wartości wejściowych prądów lub napięć można odczytać poprzez port RS485 za pomocą protokołu komunikacyjnego MODBUS RTU. Wszystkie parametry komunikacji i wymiany danych są ustawione fabrycznie. Wyjątkiem jest adres sieciowy modułu, który ustawiamy za pomocą przełącznika wielopozycyjnego umieszczonego pod elewacją czołową modułu. Moduł może przyjmować adresy sieciowe z zakresu 90÷99. Załączenie napięcia zasilania sygnalizowane jest świeceniem LED zielonej U. Poprawna wymiana danych miedzy modułem i drugim urządzeniem sygnalizowana jest świeceniem LED żółtej Tx.
Parametry protokołu MODBUS RTU
Wartości wejściowych prądów i napięć w rejestrach zapisywane są w postaci liczb dziesiętnych. Wartość prądu przedstawiana jest pod postacią całkowitej liczby dodatniej krotnej 0,01mA (np. wartość rejestru 103 odpowiada prądowi 1,03mA). Wartość napięcia przedstawiana jest pod postacią całkowitej liczby dodatniej krotnej 0,01V (np. wartość rejestru 456 odpowiada napięciu 4,56V).
Parametry komunikacyjne
Parametry rejestrów
Dane techniczne
Brak recenzji użytkowników.