



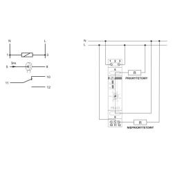
Montaż na szynie 35mm. Z kanałem przelotowym pod przewód prądowy odbiornika. Przekaźniki priorytetowe stosujemy między innymi, gdy w obwód prądowy podłączone są minimum dwa odbiorniki dużej mocy mogące pracować niezależnie, a ich jednoczesna praca spowodowałaby zadziałanie zabezpieczeń prądowych.
Montaż na szynie 35mm.
Przeznaczenie:
Przekaźniki priorytetowe stosujemy między innymi, gdy w obwód prądowy podłączone są minimum dwa odbiorniki dużej mocy mogące pracować niezależnie, a ich jednoczesna praca spowodowałaby zadziałanie zabezpieczeń prądowych.
Działanie:
Potencjometrem nastawiana jest wartość poboru prądu w obwodzie priorytetowym, powyżej której przekaźnik odłącza obwód niepriorytetowy. Spadek poboru prądu w obwodzie priorytetowym poniżej nastawionej wartości progowej spowoduje automatyczne załączenie obwodu niepriorytetowego. W przypadku kiedy załączony jest już odb. priorytetowy przekaźnik uniemożliwi załączenie odb. niepriorytetowego.
Prąd odbiornika priorytetowego może być większy od 15A. Ograniczony jest jedynie przekrojem przewodu prądowego odbiornika (odseparowanego od układu pomiarowego) przewleczonego przez kanał przelotowy przekaźnika .
Dane techniczne:
Brak recenzji użytkowników.