



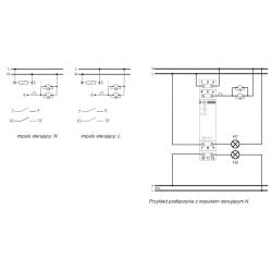
Umożliwia załączenie oświetlenia lub innego urządzenia z kilku różnych punktów za pomocą równolegle połączonych przycisków sterujących. BIS-411 24V nie może współpracować z wyłącznikami podświetlanymi. BIS- 411 230V może współpracować z wyłącznikami podświetlanymi. Styki 2P.
Przeznaczenie
Elektroniczny bistabilny przekaźnik impulsowy umożliwia załączenie oświetlenia lub innego urządzenia z kilku różnych punktów za pomocą równolegle połączonych przycisków sterujących.
Działanie
Załączenie odbiorników następuje po impulsie prądu spowodowanym naciśnięciem dowolnego przycisku chwilowego (dzwonkowego) podłączonego do przekaźnika. Wyłączenie odbiorników nastąpi po następnym impulsie.
Przekaźnik nie posiada "pamięci" pozycji styku, tzn., w przypadku zaniku napięcia zasilania i jego ponownym powrocie styk przekaźnika zostanie ustawiony w stan wyłączenia. Uniemożliwia to samoczynne załączenie sterowanych odbiorników bez nadzoru po długotrwałym zaniku napięcia zasilania.
UWAGA!
BIS- 411 2Z 230V może współpracować z wyłącznikami podświetlanymi.
Dane techniczne
Brak recenzji użytkowników.